百葉式電動氣流調節閥TEDB-0.5(矩形)

一、概述
百葉式電動氣流調節閥是我公司的一種新型節能可靠的氣流調節設備。百葉式電動氣流調節閥適用于冶金、礦山、煤炭、建材、化工、電力等行業的風機進、出口及通風管道上,對管路中流量進行電動調節。
百葉式電動氣流調節閥設計新穎、結構合理、重量輕、采用多軸多葉式、流阻小、流體均勻、啟閉力小、轉動靈活可靠。百葉式電動氣流調節閥配用Z型或ZA型電動裝置,可單獨操縱或遠距離集中控制,是各種風管系統中理想的氣流調節設備。
二、技術參數表
|
公稱壓力 |
漏風率 |
介質流速 |
適用溫度 |
適用介質 |
|
0.05MPa |
1.5% |
≤30m/s |
-20~300℃ |
空氣、粉塵氣體等 |
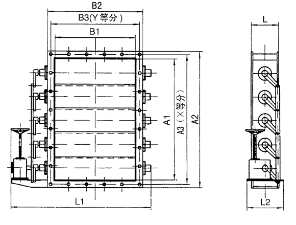
TEDB-0.5外形圖

TEDB-0.5外形尺寸表
A1×B1
A2×B2
A3×B3
L
n-d
X
Y
電動裝置
功率KW
風機
機號
L1
L2
重量(kg)
128×92
182×148
160×126
160
14-Φ7
4
3
Z5-18 ZA50-18
0.18
9-19
NO4
755
550
102
144×104
198×160
176×135
NO4.5
767
108
160×115
214×171
192×150
NO5
778
115
179×129
233×185
212×162
NO5.6
792
118
202×145
258×204
236×180
NO6.3
811
124
196×128
150×184
228×165
9-26
NO4
791
122
221×144
175×200
252×177
NO4.5
807
128
245×160
299×216
284×192
NO5
823
132
274×179
328×235
305×212
18-Φ7
5
4
NO5.6
842
143
309×202
365×261
340×236
NO6.3
868
158
227×163
293×232
270×204
14-Φ10
4
6
NO7.1
839
130
256×184
322×253
296×228
NO8
860
134
288×207
354×276
330×252
18-Φ10
5
4
NO9
883
154
A1×B1
A2×B2
A3×B3
L
n-d
X
Y
風機
機號
L1
L2
重量(kg)
320×230
386×299
360×270
180
18-Φ10
5
4
9-19
NO10
906
600
177
350×258
448×350
415×316
18-Φ12
5
4
NO11.2
957
188
400×288
489×380
456×344
20-Φ12
6
4
NO12.5
987
230
448×332
557×444
516×405
22-Φ12
6
5
NO14
1051
248
512×368
621×484
574×440
24-Φ12
7
5
NO16
1091
282
348×227
414×296
390×272
20-Φ10
6
4
9-26
NO7.1
903
207
392×256
458×325
432×300
NO8
932
221
441×288
507×357
483×330
NO9
964
237
490×320
556×389
528×356
NO10
996
263
549×358
638×450
600×410
200
26-Φ12
8
5
NO11.2
1077
650
305
613×400
702×492
664×456
28-Φ12
8
6
NO12.5
1119
320
686×448
795×564
747×516
30-Φ12
9
6
NO14
1191
367
784×512
893×628
840×588
34-Φ12
10
7
NO16
1255
404
256×199
314×254
290×231
160
14-Φ7
4
3
NO4
861
500
138
324×252
382×308
360×284
180
18-Φ7
5
44
Y5-48
NO5
915
600
206
409.5×315
466.5×371
443×348
NO6.3
978
235
520×400
632×509
580×462
18-Φ15
NO8
1136
303
655×504
771×613
728×570
220
24-Φ15
7
5
NO10
1240
650
340
815×627
935×737
888×690
28-Φ15
8
6
NO12.5
1364
446
224×196
278×251
256×228
160
16-Φ7
5
5
NO2.8
858
550
136
256×224
310×279
288×256
NO3.2
886
145
288×252
434×308
320×284
NO3.6
915
160
320×280
374×336
355×315
180
20-Φ7
NO4
943
600
217
360×315
415×371
395×350
NO4.5
978
225
400×350
456×406
435×385
NO5
1013
251
480×420
536×476
511×455
24-Φ7
NO6
1083
383
640×560
746×669
700×625
200
20-Φ15
NO8
1296
650
357
800×700
906×809
860×765
220
NO10
1436
700
472
960×840
1066×949
1008×900
240
24-Φ15
6
6
NO12
1576
750
558
1280×1120
1386×1232
1340×1188
260
28-Φ15
10
9
NO16
1879
800
890
1600×1400
1735×1538
1672×1476
320
40-Φ15
11
9
NO20
2185
850
1180
720×520
826×629
777×580
220
24-Φ15
7
5
NO8
1256
700
408
810×586
916×694
868×650
NO9
1321
446
900×715
1006×759
959×710
240
NO10
1386
750
526
990×650
1096×824
1048×846
260
28-Φ15
8
6
NO11
1471
800
560
1080×780
1186×889
1144×846
NO12
1536
640
1260×910
1389×1042
1336×990
NO14
1689
808
1440×1040
1569×1172
1512×1120
320
32-Φ15
9
7
NO16
1839
850
1180
1620×1170
1779×1332
1710×1260
32-1Φ19
NO18
1999
1320
1800×1300
1959×1462
1890×1386
420
NO20
2129
950
1550
1980×1430
2139×1596
2070×1520
36-Φ19
10
8
NO22
2263
2000
2250×1625
2459×1841
2376×1950
450
42-Φ19
12
9
NO25
2528
1000
2320
2520×1805
2732×2036
2660×1950
48-Φ19
14
10
NO28
2723
2590
2360×2065
2576×2289
2478×2195
52-Φ19
14
12
NO29.5
2976
2880


