間歇式均化庫
一、 概述
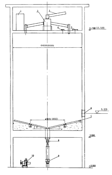
間隙式均化庫是分區均化的一種,均化效果高,適用生料成份波動小,且配料設備不夠準確的生料制備系統,出磨生料入庫裝到適當高度后,即通過分配閥或閥門按時間順序輪流充氣攪拌、取樣化驗、校正、再攪拌,直至生料成分合格出庫,間隙式均化庫特點調配操作靈活,均化效果好。這種庫的均化值通達1-12,電耗0.12-0.25kwh/t。
二、示意圖


三、技術參數表
|
設 備 |
Φ6000 |
Φ8000 |
|||||
|
序號 |
名稱 |
規格 |
數量 |
備注 |
規格 |
數量 |
備注 |
|
1 |
扁袋除塵器 |
SD42 |
1臺 |
|
SD52 |
1臺 |
|
|
2 |
六嘴生料分配器 |
Φ800 |
1臺 |
能力80T/H |
Φ1200 |
1臺 |
能力120T/H |
|
3 |
空氣輸送斜槽 |
B315 |
1臺 |
能力60T/H |
B315 |
1臺 |
能力60T/H |
|
4 |
量倉孔門 |
Φ250 |
1臺 |
|
Φ250 |
1臺 |
|
|
5 |
檢驗入孔門 |
700×800 |
1臺 |
|
700×800 |
1臺 |
|
|
6 |
庫側入孔門 |
600×800 |
1臺 |
|
600×800 |
1臺 |
|
|
7 |
充氣箱 |
|
1套 |
|
|
1套 |
|
|
8 |
手動單嘴庫底卸料器 |
Φ150 |
1臺 |
能力:80-100T/H |
Φ100 |
2臺 |
能力:80-100T/H |
|
9 |
螺旋輸送機 |
LS315 |
1臺 |
工藝定 |
LS400 |
1臺 |
工藝定 |
|
10 |
單四嘴回轉式空氣分配器(氣動<電動>O型球閥) |
Φ150 |
1臺/4只 |
|
Φ500 |
1臺 |
配用功率1.5KW |
您可能會對以下產品感興趣
產品好不好 用我們的業績證明
奧普核心合作伙伴
企業規模怎么樣 用我們的資質說明
生產能力怎么樣 用我們的設備和團隊表明
新聞動態
- 側式懸臂堆料機的構造及原理
- 什么是 熟料散裝機,有哪三大性能特點
- 什么是 氣箱脈沖布袋除塵器,安裝注意事項概述
- 橋式刮板取料機的特點及操作注意事項
- 什么是圓盤給料機,有哪些優勢特點
- 斗式提升機的六大特點概述
- 操作連續式均化庫的四大注意事項
- 移動式堆料機三大優勢特點及使用步驟
- 關于網站內容違禁詞、極限詞失效說明
- 斗式提升機的工作過程分為哪三個階段
- 操作連續式均化庫的四大注意事項
- 連續式均化庫的使用方法,你知道多少呢?
- 生料均化庫在運行中需要定期檢查哪些項目,不看后悔!
- 影響生料均化庫均化效果的常見因素,看完就明白了!
- 均化庫是新型干法水泥生產工藝的重要設施之一
- 連續式均化庫具有哪些優勢呢
- 談談星型卸料裝置的性能優勢及特點
- 均化庫專用的流量閥有哪些特點呢
- 談談關于涂裝設備的未來發展趨勢如何
- 庫底卸料裝置的密封結構可分為軟性密封和剛性密封兩種形式


