電動轉彎溜子


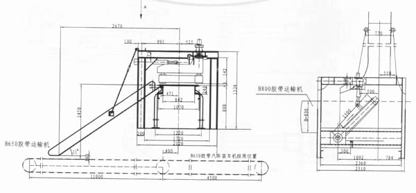
| 技術性能 1、輸送物料:袋裝水泥:50kg/包 2、擺線針輪減速機 (1)型號:BL15-9-1.1 (2)速比:9 (3)電動機型號:Y90S-4 功率0.55KW 轉速1410r/min 3、電動推桿 (1)型號DT300-60 (2)推力300kg (3)速度:84mm (4)電動機型號:A06332 功率0.55KW 轉速2800r/min 電壓380V,電流1.38A 4、行程開關 (1)型號JLXK1-111 (2)電壓380V 電流5A | 技術要求: 1、A向視圖中箭頭表示水泥包由B800膠帶運輸機電動轉彎溜子運到B650膠帶機。 2、由B800膠帶運輸機進電動彎溜子的水泥包,必須順裝進放,不允許有橫包現象。 3、行程開關在現場安裝。 |

上一頁:[袋裝設備]
下一頁:水泥袋自動裝車機


