BZ- Ⅰ/Ⅱ棒條閘門

棒條閘門是根據建材、礦山、冶金等行業中對中、小固體塊狀物料的給料、輸送、控制等工藝的要求而研制的一種新型閥門,適用于≤50mm物料的輸送控制。
結構特點
采用優質型鋼焊接,結構簡單、易操作、無卡阻、剛性強、不變形、使用壽命長、基本無維修量。是中、小固體塊狀物料控制的理想設備。
性能參數
|
適用介質 |
適用溫度 |
|
Φ50mm以下的顆粒物料 |
≤300℃ |

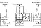
BZ-Ⅰ/Ⅱ外形連接尺寸
|
A×A |
B×B |
C×C |
L |
H1 |
H2 |
n-d |
重量W( kg) |
|
|
BZ-Ⅰ |
BZ-Ⅱ |
|||||||
|
300×300 |
356×356 |
396×396 |
800 |
100 |
120 |
8-Φ12 |
158 |
252 |
|
400×400 |
456×456 |
496×496 |
1000 |
100 |
120 |
12-Φ12 |
239 |
374 |
|
500×500 |
560×560 |
606×606 |
1200 |
120 |
140 |
16-Φ16 |
324 |
499 |
|
550×550 |
610×610 |
656×656 |
1300 |
120 |
140 |
16-Φ16 |
376 |
572 |
|
600×600 |
660×660 |
706×706 |
1400 |
120 |
140 |
16-Φ16 |
396 |
612 |
|
700×700 |
770×770 |
820×820 |
1600 |
140 |
160 |
20-Φ18 |
478 |
726 |
|
800×800 |
870×870 |
920×920 |
1800 |
140 |
160 |
20-Φ18 |
543 |
860 |
|
900×900 |
974×974 |
1030×1030 |
2000 |
160 |
180 |
24-Φ18 |
689 |
1020 |
|
1000×400 |
1056×456 |
1096×496 |
1000 |
100 |
120 |
18-Φ14 |
424 |
672 |
|
1000×1000 |
1074×1074 |
1130×1130 |
2200 |
160 |
180 |
24-Φ18 |
759 |
1260 |
|
1100×600 |
1160×660 |
1206×706 |
1400 |
120 |
140 |
20-Φ18 |
721 |
1156 |
|
1100×1100 |
1183×1183 |
1240×1240 |
2500 |
180 |
200 |
28-Φ18 |
849 |
1460 |
|
1200×400 |
1256×456 |
1296×496 |
1000 |
100 |
120 |
18-Φ14 |
498 |
790 |
|
1200×800 |
1270×870 |
1320×920 |
1800 |
140 |
160 |
28-Φ18 |
909 |
1340 |
|
1200×1200 |
1280×1280 |
1340×1340 |
2700 |
180 |
200 |
32-Φ18 |
943 |
1680 |
工作原理
棒條閘門一般為常開型,物料處流通狀態。根據工況需要切斷或調節時,需逐個插入棒條,以阻止物料流通,也可根據工況需要通過調整棒條間的間隙來控制物料的大小。
使用說明
※安裝時兩法蘭連接時必需加密封墊片,然后均勻鎖緊螺栓。
※ 運行時不得對抽出的棒條進行猛烈撞擊,以免棒條變形無法復位。
※切斷流通塊料時,必須從兩邊依次插入棒條。
※若長期存放,不允許露天存放或堆置。


