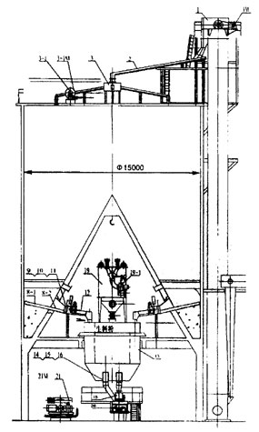
儀堡庫
儀堡庫示意圖
儀堡庫技術參數表
|
序號 |
名稱型號 |
單位 |
數量 |
|
1 |
NBS斗式提升機 |
臺 |
1 |
|
2 |
XZ400空氣輸送斜槽 傾角6° |
臺 |
1 |
|
3 |
Φ |
臺 |
1 |
|
4 |
FCM32-4氣箱脈沖袋收塵器 |
臺 |
1 |
|
5 |
風機:9-26 No8D |
臺 |
1 |
|
6 |
電動推桿蝶閥 DN=550 |
臺 |
1 |
|
7 |
庫頂收塵器管路配用蝶閥 |
|
|
|
8 |
庫內開式充氣斜槽及管件 |
臺 |
1 |
|
9 |
螺旋閘板閥:B200 |
臺 |
6 |
|
10 |
氣動開關閥:B200 |
臺 |
6 |
|
11 |
電動流量調節閥:B200 |
臺 |
6 |
|
12 |
XZ200× |
臺 |
6 |
|
13 |
套筒式生料計量喂料倉 |
臺 |
1 |
|
14 |
螺旋閘板閥:B250 |
臺 |
2 |
|
15 |
氣動開關閥:B250 |
臺 |
2 |
|
16 |
電動流量調節閥:B250 |
臺 |
2 |
|
17 |
XZ250× |
臺 |
1 |
|
18 |
DLM固體流量計 |
件 |
1 |
|
19 |
FHW-III分室單機袋式收塵器 |
臺 |
1 |
|
20 |
庫底收塵器風管手動蝶閥:Φ300 |
臺 |
2 |
|
21 |
羅茨鼓風機:JRD-125型 |
臺 |
3 |
|
22 |
減壓閥 |
件 |
14 |
|
23 |
電磁閥 |
件 |
14 |
|
24 |
手動截止閥:Φ150 |
件 |
14 |
|
25 |
軸流風機 |
臺 |
1 |
|
26 |
DTSB |
臺 |
1 |


