NSE系列高速板鏈斗式提升機
.jpg)
概述
NSE系列高速板鏈斗式提升機是一種垂直提升設備。這類產品被廣泛用于提升粉狀和小顆粒狀物料。
NSE系列高速板鏈斗式提升機共有九種基本型號:NSE100、NSE200、NSE300、NSE400、NSE500、NSE600、NSE700、NSE800、NSE1000,每種型號根據輸送物料的不同,選擇不同的提升速度,提升速度上限<70m/min,提升高度上限65m。另外,奧普公司還可根據用戶要求輸送量介于上述型號之間的擴展型號。
NSE100 - 20.5m 一 170m3/h -右裝
提升機裝配形式
額定輸送量(立方米每小時)
提升高度(米)
高效板鏈式提升
注:提升機裝配型式的識別
▲左裝一指人在進料口一側,面對進料口,驅動裝置在左邊。
▲右裝一指人在進料口一側,面對進料口,驅動裝置在右邊。
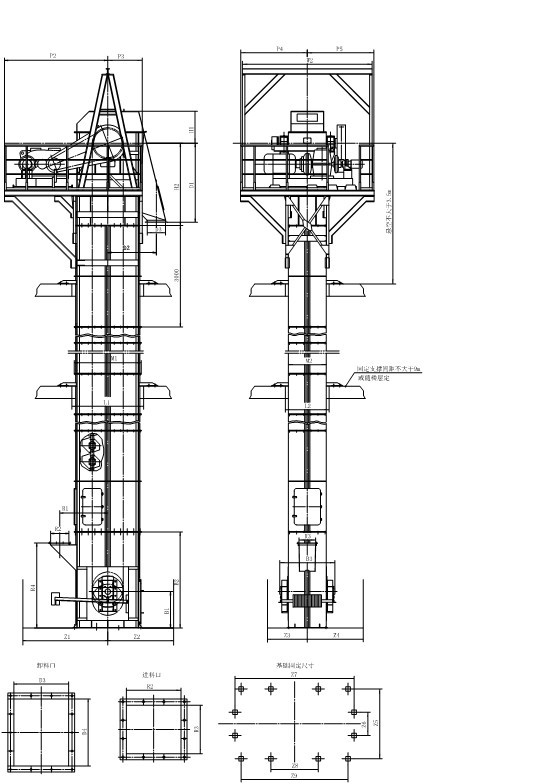
結構
NSE板鏈式提升機由運行部件、驅動裝置、上部裝置、中部機殼、下部裝置組成。
運行部件--由料斗和套筒滾子鏈組成。
驅動裝置--由驅動平臺、驅動組合、傳動鏈組成。驅動組合分為兩種:①鏈傳動:通常由ZSY硬齒面減速機(或JZQ減速機)、YOX液力偶合器、Y系列電機、XWD減速機、電磁離合器(或手動離合器)組成;②直聯:采用直交軸硬齒面減速機與提升機主軸直聯,Y系 列電機與減速機之間#用偶合器(聯軸器)聯接。
驅動裝置分左裝和右裝兩種。分別與提升機左、右裝對應。
左裝:為人面對進料口,驅動裝置組合在左側。
右裝:為人面對進料口,驅動裝置組合在右側。
上部裝置--有上部機殼、上罩、卸料口(裝有防回料板)、頭軸裝配、逆止器等部件。
中部機殼--分為與上部裝置聯接的帶支撐中間節、帶檢視門中間節、標準中間節(均為 3.0米高)和非標準中間節。
下部裝置--包括下部機殼、進料口、尾軸裝配、張緊裝置,并有旋轉探測儀、料位開關供選配。
選型參數
NSE50-NSE600HH型提升機的常用提升量、提升高度分別見表1-8.
選擇NSE700、NSE800、NSE1000型提升機時,請與公司技術部聯系。
















