泄壓閥安裝于封閉系統的設備
泄壓閥又名 安全閥(safety valve)根據系統的工作壓力能自動啟閉,一般安裝于壓力平衡閥封閉系統的設備或管路上保護系統安全。當設備或管道內壓力超過泄壓閥設定壓力時,即自動開啟泄壓,保證壓力平衡閥設備和管道內介質壓力在設定壓力之下,保護設備和管道,防止發生意外。
泄壓閥結構主要有兩大類:彈簧式和杠桿式。彈簧式是指閥瓣與閥座的密封靠彈簧的作用力。杠桿式是靠杠桿和重錘的作用力。隨著大容量的需要,又有一種電動放風閥脈沖式泄壓閥,也稱為先導式泄壓閥,由主泄壓閥和輔助閥組成。當管道內介質壓力超過規定壓力值時,輔助閥先開啟,介質沿著導管進入主泄壓閥,并將主泄壓閥打開,使增高的介質壓力降低。
泄壓閥開啟壓力的調整
1、安全閥出廠前,應逐臺調整其開啟壓力到用戶要求的整定值。若用戶提出彈簧工作壓力級,則按一般應按壓力級的下限值調整出廠。
2、使用者在將泄壓閥安裝到被保護設備上之前或者在安裝之前,安全閥必須在安裝現場重新進行調整,以確保泄壓閥的整定壓力值符合要求。
3、為保證開啟壓力值準確,應使調整時的介質條件,如介質種類、溫度等盡可能接近實際運行條件。介質種類改變,特別是當介質聚積態不同時(例如從液相變為氣相),開啟壓力常有所變化。工作溫度升高時,開啟安全閥壓力一般有所降低。故在常溫下調整而用于高溫時,常溫下的整定壓力值應略高于要求的開啟壓力值。高到什么程度與閥門結構和材質選用都有關系,應以制造廠的說明為根據。
4、常規泄壓閥用于固定附加背壓的場合,當鎖風裝置在檢驗后調整開啟壓力時(此時背壓為大氣壓),其鎖風裝置整定值應為要求的開啟壓力值減去附加背壓值。
泄壓閥的用途
1、準確且保持不變的電動放風閥安全穩定壓力,一旦超壓,泄壓閥能充分打開及時泄壓。
2、關閉速度可調,消除壓力波動。
泄壓閥特點
1、準確且保持不變的安全穩定壓力,一旦超壓,泄壓閥能充分打開壓力平衡閥及時泄壓。
2、關閉速度可調,消除壓力波動。
泄壓閥又名 安全閥(safety valve)根據系統的工作壓力能自動啟閉,一般安裝于壓力平衡閥封閉系統的設備或管路上保護系統安全。當設備或管道內壓力超過泄壓閥設定壓力時,即自動開啟泄壓,保證壓力平衡閥設備和管道內介質壓力在設定壓力之下,保護設備和管道,防止發生意外。
泄壓閥結構主要有兩大類:彈簧式和杠桿式。彈簧式是指閥瓣與閥座的密封靠彈簧的作用力。杠桿式是靠杠桿和重錘的作用力。隨著大容量的需要,又有一種電動放風閥脈沖式泄壓閥,也稱為先導式泄壓閥,由主泄壓閥和輔助閥組成。當管道內介質壓力超過規定壓力值時,輔助閥先開啟,介質沿著導管進入主泄壓閥,并將主泄壓閥打開,使增高的介質壓力降低。
泄壓閥開啟壓力的調整
1、安全閥出廠前,應逐臺調整其開啟壓力到用戶要求的整定值。若用戶提出彈簧工作壓力級,則按一般應按壓力級的下限值調整出廠。
2、使用者在將泄壓閥安裝到被保護設備上之前或者在安裝之前,安全閥必須在安裝現場重新進行調整,以確保泄壓閥的整定壓力值符合要求。
3、為保證開啟壓力值準確,應使調整時的介質條件,如介質種類、溫度等盡可能接近實際運行條件。介質種類改變,特別是當介質聚積態不同時(例如從液相變為氣相),開啟壓力常有所變化。工作溫度升高時,開啟安全閥壓力一般有所降低。故在常溫下調整而用于高溫時,常溫下的整定壓力值應略高于要求的開啟壓力值。高到什么程度與閥門結構和材質選用都有關系,應以制造廠的說明為根據。
4、常規泄壓閥用于固定附加背壓的場合,當鎖風裝置在檢驗后調整開啟壓力時(此時背壓為大氣壓),其鎖風裝置整定值應為要求的開啟壓力值減去附加背壓值。
泄壓閥的用途
1、準確且保持不變的電動放風閥安全穩定壓力,一旦超壓,泄壓閥能充分打開及時泄壓。
2、關閉速度可調,消除壓力波動。
泄壓閥特點
1、準確且保持不變的安全穩定壓力,一旦超壓,泄壓閥能充分打開壓力平衡閥及時泄壓。
2、關閉速度可調,消除壓力波動。

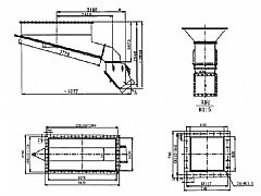
安全閥AQF-I
安全閥,AQF-I型安全閥
鎖風裝置
電動放風閥
壓力平衡閥
